A 1432/B típusú „ORIPONS" mérőhíd
Több feladatra alkalmas mérőkészülék. Minden dielektrometriás, ill. konduktometriás mérésre alkalmas, amely kapacitásmérésen vagy vezetőképesség mérésen alapul.
Ezen mérések ismertetése Dobos Dezső: Elektronikus elektrokémiai mérőkészülékek c. könyvében részletesen le van írva. A műszer leírása Magyari Béla: Elektronikus Mérőkészülékek a Híradástechnikában található.

Műszaki adatok
Méréshatárok:
Egyenfeszültséggel: 0,5 ohm - 1 Mohm
Váltófeszültséggel: 0,5 ohm - 10 Mohm,
50pF-1000uF
Százalékos összehasonlító mérésnél: -20% -tól +20%-ig
Mérési pontosság: +/-3-5%
Hálózat: 220V, 50-60Hz. 15W.
Csövek: 1 db 6AU6, 1 db EM4, 1 db 6X4
Méret: 24 x 18 x 10 cm. Súly: 4,2kg
 | 
 |
Ismertetés
Univerzális RC-mérőhid, elektroncsöves erősítéssel és indikálással. A mérőhid lineáris, a bekapcsolt etalon 0,5 -tői 10,05-ig mér. A mérőhidat 6,3V földfüggetlen váltófeszültség táplálja, de lehetséges az ellenállások egyenfeszültséggel való mérése is. Ez tekercsek ellenállásmérésekor szükséges.
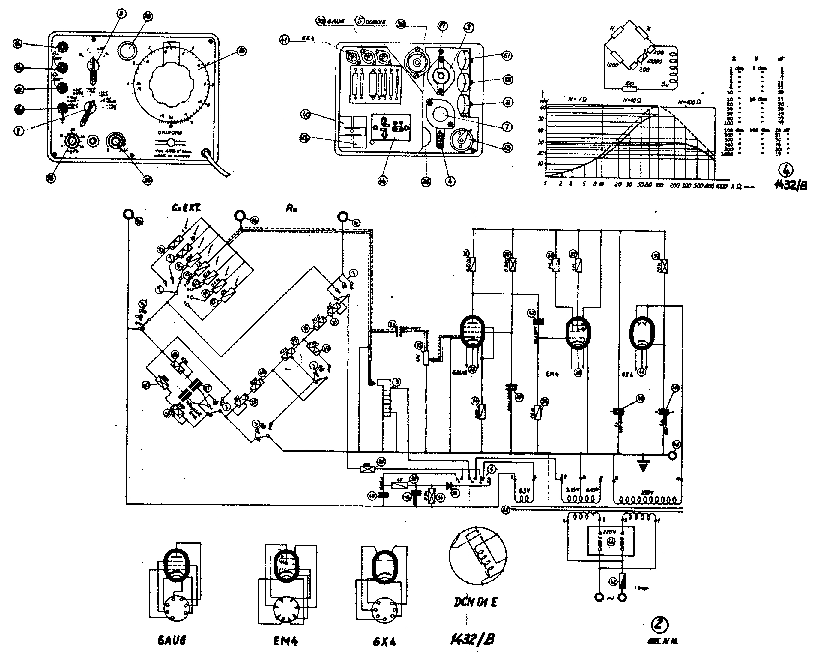
A készülék előlapját a l-es ábra, kapcsolását a 2. ábra, belső elrendezését a 3. ábra mutatja.
A készülék jobboldalán, 15-ös jelzéssel találjuk a mérőpotenciométert, baloldalon alul a Pl-es potenciométert (16-os jelzéssel) amely a tgdelta%-os mérésére való. A P6-os potenciométer az indikátor-rész érzékenységét szabályozza. E két potenciométer forgatógombja között az egyenfeszültségű ellenállásmérésnél használt szaggató 4-es kapcsológombját, felette az S2 méréshatárváltó kapcsolót.(7-esjelű). Ez utóbbi felett, pedig az S1 (3-as jelű) mérésmód kapcsoló van. Az előlap balszélén vannak az 1a, 1b, 1e, csatlakozóhüvelyek. A mérés pontossága esetenként megköveteli készülék földelését, erre szolgál a 1d földelőkapcsoló. A Mohm nagyságrendű ellenállásokat és a 100pF nagyságrendű kapacitásokat közvetlenül A mérőkapcsokon mérjük, hozzávezető huzalok nélkül. Ellenállás mérésekor az S1 kapcsoló R állásban, az S2 kapcsoló a várható ellenállás tartománynak megfelelő állásba legyen. A mérendő ellenállást az 1a, 1b kapcsokra kötjük. A mérőpotmétert lassan forgatjuk, amíg a varázsszem szétnyílik. A mért ellenállás értékét a mérőpotméter alatt lévő skála érték és a bekapcsolt etalon szorzata adja. Alaphelyzetben ez a mérés váltófeszültséggel történik. Ha tekercsek ellenállását akarjuk mérni, akkor kell az egyenfeszültséggel való mérés. Mindent az előzőekben leirt módon kell kapcsolni, csak a 4-es gombot benyomva kell tartani.
Kapacitások (kondenzátorok) mérése:
Az S1-es kapcsoló „C" állásban, a mérendő kapacitás az 1b, 1e kapcsok között az S2 kapcsoló a várható érték etalonjának megfelelő állásban, a kiegyenlítés szintén a mérőpotméter lassú forgatásával történik, amíg a varázsszem szétnyílik. A mért érték, mint az ellenállásmérés estében, a mérőpotméter alatt levő skálaérték és a bekapcsolt etalon szorzata adja. Veszteséges kondenzátorok kiegyenlítése a mérőpotméter és a P1-es potméterrel lehetséges. Ez utóbbi skáláján leolvasható a kondenzátor veszteségi szöge.
Külső etalonnal való mérés
Ebben az esetben az S1 kapcsolót „Ext" állásba kapcsoljuk. Ellenállás esetében a mérendő ellenállás az 1a, 1b (Rx), az etalon az 1b, 1e, (Rext) kapcsokra kell csatlakoztatni. A mérés további menete azonos az ellenállásmérésnél leírtakkal. Kondenzátormérésnél a mérendő kondenzátor az 1b, 1e (Cx), az etalon az 1a, 1b, kapcsokra kell csatlakoztatni. A mérés további menete azonos a kapacitásmérésnél leírtakkal. Ezen mérésekkel lehetséges azonos értékű ellenállásokat, ondenzátorokat kiválogatni. Százalékos eltérés mérésekor az S1 kapcsolót „%" állásba kapcsoljuk. Az összehasonlítandó ellenállásokat, illetve kondenzátorokat az 1a, 1b, illetve 1b, 1c, kapcsokra kötjük. A %-os eltérést a mérőpotméter skáláján olvassuk 1e, mégpedig a 0 középállástól jobbra „+", balra a ,,-,,%-os eltérést. Az eltérések jobbra ill. balra 20% lehetnek.

Elvileg külső etalonnal való mérés esetén lehet induktivitást is mérni, de ezt nem próbáltam ki. Ha a mérőpotenciométer mutatója elmozdult, az alábbiak szerint hitelesítsük: Állítsuk a készüléket %-mérésre, és kapcsoljunk rá 2 db 0,5%-on belül egyenlő értékű (százas ohm-nagyságrendű) ellenállást. A mérőpotenciométer segítéségével egyenlítsük ki a hidat. A mérőhid kiegyenlített állapotában a mutatót úgy helyezzük fel, hogy az a „0%"-os jelzésen álljon. A gyűjteményemben levő műszer varázsszem nélkül került hozzám. Pótolva az EM4-et, majd zárlatvizsgálat után a varázsszem összecsukódott, de a hidkiegyenlitést nem jelezte. Tüzetesebb vizsgálat után feltűnt, hogy a 6X4 anód-katódja között egy 1N4007-es dióda van bekötve. Nem volt feltűnő, mert a cső is a helyén volt. Az anódfeszültségen jelentős, brumm volt, amit a szürőelkók hibája okozott. Visszaállítva a 6X4-es cső eredeti állapotát és a szürőelkók cseréjét elvégezve, az érzékenység szabályzó potmétert lecsavarva, a varázsszem működését lehetett érzékelni. A hídról semmi jel - legalábbis ami a kiegyenlítésre utal - nem volt mérhető. R állásban a Cx mérőkapocs és a test között pár ohmos ellenállásértéket mértem, a kapcsolási rajzon jelzett 850 + 200 Ohmos érték helyett. Ennek értéke pontosan 1 kOhm. Először arra gondoltam, hogy a földfüggetlen 6,3V-ot adó trafótekercs zárlatos a föld felé. Ezt a pár ohmos ellenállás indokolta. Kibontva a trafó és az egyenirányító egységet és mozgatva megszűnt a zárlat. A hibát az okozta, hogy a trafókivezetés szigetelése megkopott, és hozzáért a fém szerelőlaphoz. Ez okozta a zárlatot. Elszigetelve a kivezetést, tökéletesen működik a műszer. Leírni utólag már könnyű, de elég nehéz volt megtalálni. Néhány ellenállás és 2 db kondenzátor (1 uF +/- 1% és 100 nF +/- 1%) segítségével ellenőriztem a skála hitelességét. Előnye a műszernek, hogy átvezetéses kondenzátorok mérésénél nem adnak tiszta, határozott szemnyílást, amit a tgdelta potméterrel lehet kiegyenlíteni. Nagy átvezetés esetében nem lehet hidat kiegyenlíteni. A digitális műszerek kapacitásmérésekor ez többletkapacitásként jelentkezik. Kisebb hátrány, hogy 100pF alatt nem lehet kapacitást mérni. Én ezt úgy oldottam meg, hogy csináltam egy 100pF értékű kondenzátort és ezzel párhuzamosan kötöm a mérendő kapacitást.
Felhasznált irodalom:
1. Dobos Dezső: Elektronikus elektrokémiai mérőkészülékek. (286 oldaltól a 289 -ig.)
2. Magyari Béla: Elektronikus mérőkészülékek a híradástechnikában. ORIPONS1432.
3. EMG „ORIPONS" Üzemi mérőhid Tip. 1432/B gépkönyv.
RMK Nosztalgia Rádió Egyesület lapja - Megjelenik kéthavonta, ingyenesen az Egyesület tagjai részére
Főszerkesztő: Kóger László, Szerkesztés: Biliczky István, Kiadás: Szécsényi Lajos
RMK Nosztalgia Rádió Egyesület székhelye: 1800Bp., Bródy S. u. 5-7. Elnök: Kóger László tel.: (06-30) 378-6633 kogerradio@citromail.hu |
Dokumentumok :: Nosztalgia Rádió Hírújság
2011.6.20